إعلانات الصفقات العمومية
2026-04-07
ANEP 2623002556
APPEL D’OFFRE NATIONAL OUVERT AVEC EXIGENCE DE CAPACITES MINIMALES
½ page
ANEP 2623002595
إعلان عن عدم جدوى
¼ page
ANEP 2625003510
Avis d’attribution provisoire
¼ page
ANEP 2625003538
AVIS D’ATTRIBUTION PROVISOIRE
¼ page
ANEP 2625003555
AVIS D’APPEL D’OFFRES NATIONAL OUVERT AVEC EXIGENCE DE CAPACITES MINIMALES
½ page
ANEP 2625003566
Avis d’Attribution provisoire
¼ page
ANEP 2625003574
إعلان عن منح مؤقت للصفقة وعدم جدوى
¼ page
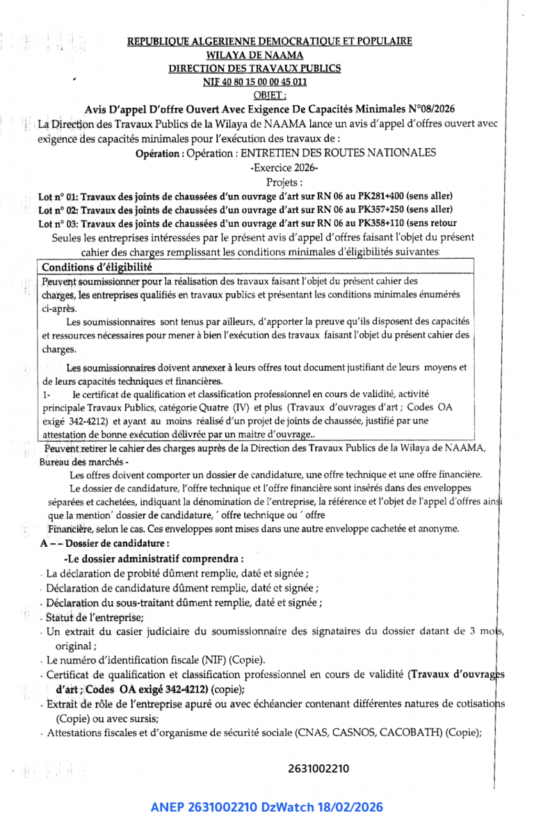
ANEP 2631006151
إعلان عن مناقصة وطنية مفتوحة
¼ page
ANEP 2631006175
إعلان عن إسناد مؤقت للصفقة
¼ page
ANEP 2631006223
إعلان عن منح مؤقت
¼ page
ANEP 2616011952
إعلان عن طلب عروض وطني مفتوح مع اشتراط قدرات دنيا
½ page
ANEP 2616011989
AVIS D’ATTRIBUTION PROVISOIRE DE MARCHES
¼ page
ANEP 2616011997
إعلان عن طلب عروض وطنية مفتوحة مع اشتراط قدرات دنيا
¼ page
ANEP 2616012016
إعلان عن منح مؤقت للصفقات
¼ page
ANEP 2616012024
إعلان عن المنح المؤقت
¼ page
ANEP 2616012085
إعذار رقم 02
¼ page
ANEP 2616012114
إعلان عن طلب العروض المفتوح
¼ page
ANEP 2616012122
إعلان عن طلب العروض المفتوح مع اشتراط قدرات دنيا
½ page
ANEP 2616012128
إعلان ثاني عن مناقصة وطنية مفتوحة مع شرط الحد الأدنى للقدرات
½ page
ANEP 2616012135
إعلان عن طلب عروض مفتوح
½ page
ANEP 2616012146
إعلان عن طلب عروض مفتوح مع اشتراط قدرات دنيا
¼ page
2026-04-06
ANEP 2625003515
إعلان طلب العروض الوطني المفتوح مع اشتراط قدرات دنيا
½ page
ANEP 2625003516
إعلان طلب العروض الوطني المفتوح مع اشتراط قدرات دنيا
½ page
ANEP 2630002071
إعلان عن المنح المؤقت للصفقة
¼ page
ANEP 2630002078
إعلان عن المنح المؤقت للصفقة
¼ page
ANEP 2631006073
AVIS D’ATTRIBUTION PROVISOIRE DE MARCHE
¼ page
ANEP 2631006082
AVIS D’ATTRIBUTION PROVISOIRE
¼ page
ANEP 2631006102
إعلان عن طلب عروض مفتوح مع اشتراط قدرات دنيا
¼ page
ANEP 2631006111
إعذار رقم 01
¼ page
ANEP 2616011628
AVIS D’ATTRIBUTION PROVISOIRE DU MARCHE
¼ page
ANEP 2616011759
إعلان عن طلب عروض وطنية مفتوحة مع اشتراط قدرات دنيا
½ page
ANEP 2616011766
إعلان عن طلب عروض وطني مفتوح مع اشتراط قدرات دنيا
¼ page
ANEP 2616011773
إعلان عن مناقصة وطنية مفتوحة مع اشتراط الحد الأدنى من القدرات
½ page
ANEP 2616011783
MISE EN DEMEURE N°01
¼ page
ANEP 2616011813
AVIS D’ATTRIBUTION PROVISOIRE
¼ page
ANEP 2616011837
AVIS D’ATTRIBUTION PROVISOIRE
¼ page
ANEP 2616011850
AVIS D’ATTRIBUTION PROVISOIRE
¼ page
ANEP 2616011854
AVIS D’ATTRBUTION PROVISOIRE
¼ page
ANEP 2616011863
AVIS D’ANNULATION DE L’ATTRIBUTION PROVISOIRE DE MARCHE
¼ page
ANEP 2616011865
AVIS D’ATTRIBUTION PROVISOIRE
¼ page
ANEP 2616011890
AVIS D’APPEL D’OFFRES NATIONAL OUVERT AVEC EXIGENCE DE CAPACITES MINIMALES N°01/2026
¼ page
ANEP 2616011895
إعلان عن منح مؤقت لصفقة
¼ page
ANEP 2623002545
AVIS D’APPEL D’OFFRES NATIONAL OUVERT AVEC EXIGENCE DE CAPACITES MINIMALE
½ page
ANEP 2623002553
إعلان عن طلب العروض المفتوح مع اشتراط قدرات دنيا
¼ page
2026-04-05
ANEP 2623002513
1ère MISE EN DEMEURE
¼ page
ANEP 2623002523
إعلان عن ثاني طلب عروض مفتوح مع اشتراط قدرات دنيا
½ page
ANEP 2625003411
إعلان عن منح مؤقت لصفقة
½ page
ANEP 2625003425
AVIS D’ATTRIBUTION PROVISOIRE DU MARCHE
¼ page
ANEP 2625003444
إعلان عن عدم جدوى طلب العروض المفتوح مع اشتراط قدرات دنيا
¼ page
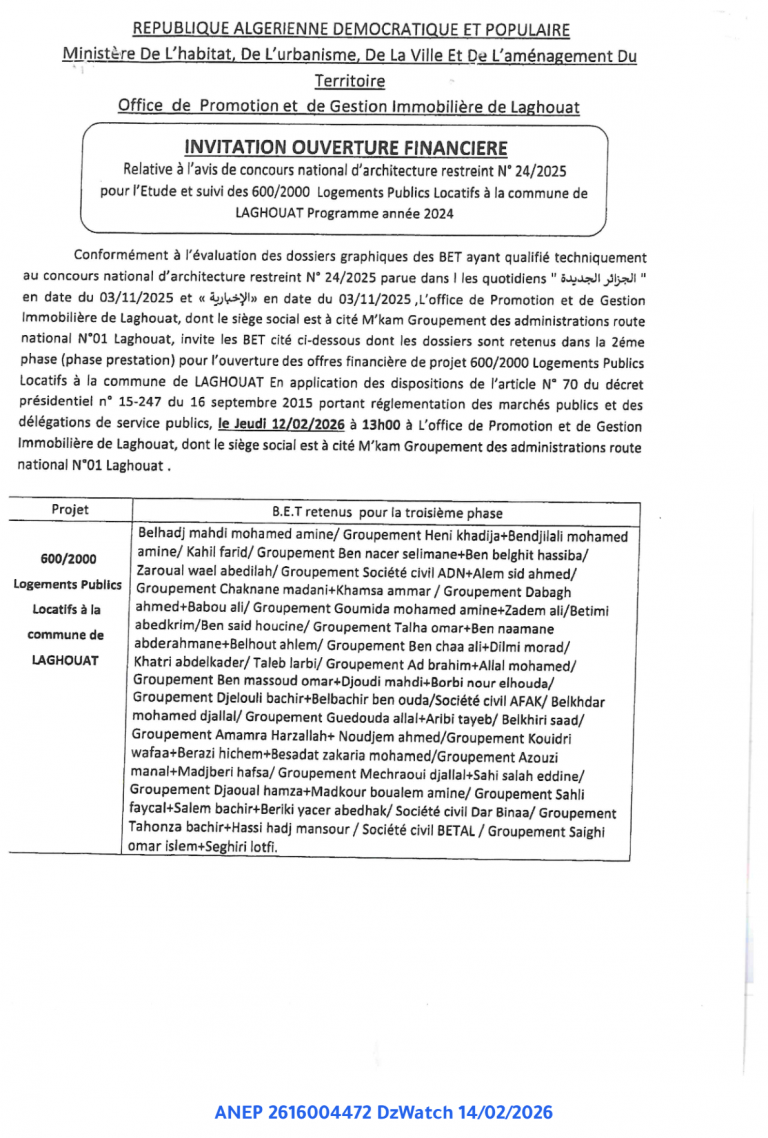
ANEP 2631006009
إعلان عن الدعوة لمكاتب الدراسات
¼ page
ANEP 2631006037
AVIS DE CONCOURS D’ARCHITECTURE NATIONAL RESTREINT
¾ page
ANEP 2616011336
AVIS D’ATTRIBUTION PROVISOIRE
¼ page
ANEP 2616011380
AVIS DE PRÉ-SÉLECTION
¼ page
ANEP 2616011381
إعلان عن انتقاء مسبق
¼ page
ANEP 2616011387
إعلان عن المنح المؤقت
¼ page
ANEP 2616011388
AVIS D’ATTRIBUTION PROVISOIRE DU MARCHE
¼ page
ANEP 2616011503
إعلان عن عدم جدوى للمرة الثانية
¼ page
ANEP 2616011537
الإعلان عن المنح المؤقت
¼ page
ANEP 2616011570
AVIS D’ATTRIBUTION PROVISOIRE
¼ page
ANEP 2616011614
إعلان عن منح مؤقت
¼ page
ANEP 2616011618
AVIS D’ANNULATION DE L’AVIS D’APPEL D’OFFRES
¼ page
ANEP 2616011674
إعلان عن المنح المؤقت لصفقة
¼ page
ANEP 2616011683
إعلان عن طلب عروض وطني مفتوح مع اشتراط قدرات دنيا
¼ page
ANEP 2616011698
إعلان عن ثاني طلب عروض وطني مفتوح مع اشتراط قدرات دنيا
¼ page
ANEP 2616011704
طلب العروض المفتوح مع اشتراط قدرات دنيا
½ page
ANEP 2616011710
إعلان عن طلب عروض مفتوح مع اشتراط قدرات دنيا
½ page
2026-04-04
ANEP 2623002444
إعلان عن المنح المؤقت لطلب عروض
¼ page
ANEP 2623002489
AVIS D’APPEL D’OFFRES NATIONAL OUVERT AVEC EXIGENCE DES CAPACITES MINIMALAES N° : 09 / 2026
½ page
ANEP 2625003321
Avis d’attribution provisoire
¼ page
ANEP 2625003370
إعلان عن طلب عروض مفتوح
¼ page
ANEP 2625003377
الإعلان عن طلب العروض المفتوح مع اشتراط قدرات دنیا
¾ page
ANEP 2625003381
إعلان عن طلب عروض مفتوح مع اشتراط قدرات دنيا
¼ page
ANEP 2630002032
إعلان عن المنح المؤقت
¼ page
ANEP 2630002033
إعلان عن طلب عروض مفتوح مع اشتراط قدرات دنيا
¼ page
ANEP 2631005889
إعلان عن المنح المؤقت للصفقة
¼ page
ANEP 2631005914
الإعذار الثاني
¼ page
ANEP 2631005916
إعذار ثان و أخير قبل الفسخ
¼ page
ANEP 2631005917
إعادة الإعلان عن طلب ثاني مناقصة وطنية مفتوحة
¼ page
ANEP 2616011277
إعلان عن طلب العروض المفتوح مع اشتراط قدرات دنيا
¼ page
ANEP 2616011311
AVIS D’ATTRIBUTION PROVISOIRE
¼ page
ANEP 2616011370
إعلان عن المنح المؤقت لعملية
¼ page
ANEP 2616011376
Avis d’Infructuosité
¼ page
ANEP 2616011382
AVIS D’ATTRIBUTION PROVISOIRE
¼ page
ANEP 2616011390
إعلان للمترشحين المشاركين في المسابقة الوطنية للهندسة المعمارية المحدودة رقم 2026/04
¼ page
ANEP 2616011456
MISE EN DEMEURE N°02
¼ page
ANEP 2616011470
إعلان عن طلب العروض المفتوح مع اشتراط قدرات دنيا
½ page
ANEP 2616011473
إعلان عن طلب عروض مفتوح مع اشتراط قدرات دنيا
¼ page
ANEP 2616011496
إعلان عن المنح المؤقت
¼ page
ANEP 2616011548
إعلان عن منح مؤقت للصفقات
¼ page
ANEP 2616011561
إعلان عن مسابقة محدودة
¼ page
2026-04-02
ANEP 2623002327
إعلان عن منح مؤقت
½ page
ANEP 2623002384
AVIS D’ATTRIBUTION PROVISOIRE RECTIFICATIF
¼ page
ANEP 2625003256
AVIS D’ATTRIBUTION PROVISOIRE
¼ page
ANEP 2625003271
إعلان عن المنح المؤقت
¼ page
ANEP 2625003305
إعلان عن طلب عروض وطني مفتوح مع اشتراط قدرات دنيا
¼ page
ANEP 2625003306
إعلان عن طلب عروض وطني مفتوح مع اشتراط قدرات دنيا
¼ page
ANEP 2631005748
2 EME AVIS D’APPEL D’OFFRES NATIONAL OUVERT AVEC EXIGENCE DE CAPACITES MINIMALES N°01/2026
½ page
ANEP 2631005840
AVIS D’APPEL D’OFFRE NATIONAL OUVERT AVEC EXIGENCE DES CAPACITES MINIMALES
½ page
ANEP 2631005853
طلب العروض الوطني المفتوح مع اشتراط قدرات دنيا
½ page
ANEP 2616011099
إعلان عن إعذار
¼ page
ANEP 2616011106
إعلان عن طلب عروض مفتوح
¼ page
ANEP 2616011112
إعذار رقم 02
¼ page
ANEP 2616011156
AVIS D’ATTRIBUTION PROVISOIRE
½ page
ANEP 2616011161
إعلان عن المنح المؤقت
¼ page
ANEP 2616011187
AVIS D’ATTRIBUTION PROVISOIRE DU MARCHE
¼ page
ANEP 2616011189
AVIS D’APPEL D’OFFRES NATIONAL OUVERT AVEC EXIGENCE DE CAPACITES MINIMALES
¾ page
ANEP 2616011206
Avis d’Attribution Provisoire du Marché
½ page
ANEP 2616011224
AVIS D’ATTRBUTION PROVISOIRE
¼ page
ANEP 2616011257
Avis D’infructuosité de l’Appel d’offre
¼ page
ANEP 2616011077
إعلان عن طلب العروض المفتوح مع اشتراط قدرات دنيا
¼ page
2026-04-01
ANEP 2623002334
إعلان عن منح مؤقت
¼ page
ANEP 2623002494
طلب العروض الوطني المفتوح مع اشتراط قدرات دنيا
½ page
ANEP 2625003229
AVIS D’ APPEL D’OFFRE OUVERT AVEC EXIGENCE DE CAPACITES MINIMALES
¼ page
ANEP 2625003231
AVIS D’APPEL D’OFFRES OUVERT AVEC EXIGENCE DE CAPACITES MINIMALES
¾ page
ANEP 2630001966
إعلان عن طلب عروض مفتوح مع اشتراط قدرات دنيا
¼ page
ANEP 2630001967
إعلان عن طلب عروض مفتوح
¼ page
ANEP 2631005658
AVIS CONCOURS NATIONAL D’ARCHITECTURE RESTREINT
¾ page
ANEP 2631005678
إعلان عن المنح المؤقت للصفقة
¼ page
ANEP 2631005705
AVIS D’ATTRIBUTION PROVISOIRE DES MARCHES
¼ page
ANEP 2631005767
L’ AVIS D’ATTRIBUTION PROVISOIRE
¼ page
ANEP 2616010408
AVIS D’APPEL D’OFFRES OUVERT AVEC EXIGENCE DE CAPACITES MINIMALE N° 01/2026
½ page
ANEP 2616010666
إعلان عن منح مؤقت للصفقة
¼ page
ANEP 2616010680
Avis d’attribution provisoire
¼ page
ANEP 2616010757
إعلان عن طلب عروض وطني مفتوح مع اشتراط قدرات دنيا
¼ page
ANEP 2616010784
إعلان عن طلب العروض المفتوح مع اشتراط قدرات دنيا
¼ page
ANEP 2616010786
إعلان عن طلب العروض المفتوح مع إشتراط قدرات دنيا
¼ page
ANEP 2616010792
طلب عروض مفتوح مع اشتراط قدرات دنيا
¼ page
ANEP 2616010808
AVIS D’APPEL D’OFFRES OUVERT AVEC EXIGENCE DE CAPACITES MINIMALES
¼ page
ANEP 2616010826
Avis d’Attribution Provisoire
¼ page
ANEP 2616010833
إعلان عن المنح المؤقت للصفقة
¼ page
ANEP 2616010856
AVIS D’ATTRIBUTION PROVISOIRE
¼ page
ANEP 2616011013
AVIS D’APPEL D’OFFRES OUVERT AVEC EXIGENCE DE CAPACITES MINIMALES N° 20 / 2026
¼ page
2026-03-31
ANEP 2623002377
ثاني إعلان عن طلب العروض الوطني المفتوح مع إشتراط قدرات دنیا رقم 2026/36
¼ page
ANEP 2623002378
AVIS D’APPEL D’OFFRES OUVERT
¾ page
ANEP 2625003168
AVIS D’APPEL D’OFFRES NATIONAL OUVERT AVEC EXIGENCE DE CAPACITE MINIMALE N° 32/2026
¼ page
ANEP 2625003169
AVIS D’APPEL D’OFFRES NATIONAL OUVERT AVEC EXIGENCE DE CAPACITES MINIMALES
¼ page
ANEP 2625003174
AVIS D’APPEL D’OFFRES NATIONALE OUVERT AVEC EXIGENCE DE CAPACITÉS MINIMALES
¼ page
ANEP 2631005645
AVIS D’ATRIBUTION PROVISOIR
¼ page
ANEP 2631005700
إعلان عن طلب عروض مفتوح مع اشتراط القدرات الدنيا
½ page
ANEP 2631005742
AVIS D’APPEL D’OFFRES NATIONAL OUVERT AVEC EXIGENCE DE CAPACITES MINIMALES
¾ page
ANEP 2616010519
الإعلان عن المنح المؤقت
¼ page
ANEP 2616010568
إعلان عن طلب العروض المفتوح مع اشتراط قدرات دنيا
¾ page
ANEP 2616010844
Décision de résiliation unilatérale
page complète
ANEP 2616010886
Avis d’attribution provisoire
¼ page
ANEP 2616010893
إعلان عن منح مؤقت بعد التصحيح
¼ page
ANEP 2616010915
Avis d’Appel d’Offre national ouvert avec exigence de capacités minimales
¾ page
ANEP 2616010993
AVIS DE CORRECTION D’ATTRIBUTION PROVISOIRE
¼ page
ANEP 2616011019
إعلان عن منح مؤقت للصفقة
¼ page
2026-03-30
ANEP 2623002323
Avis d’appel d’offres ouvert avec exigence de capacités minimales
¼ page
ANEP 2623002324
AVIS D’APPEL D’OFFRE OUVERT
½ page
ANEP 2625003114
إعلان عن منح مؤقت لمشروع
¼ page
ANEP 2625003124
AVIS D’APPEL D’OFFRES OUVERT AVEC EXIGENCE DE CAPACITES MINIMALES
¼ page
ANEP 2625003131
AVIS D’ATTRIBUTION PROVISOIRE
¼ page
ANEP 2625003161
إعلان عن طلب العروض الوطني المفتوح مع اشتراط قدرات دنيا
¼ page
ANEP 2630001799
AVIS D’APPEL D’OFFRE NATIONAL OUVERT AVEC EXIGENCE DE CAPACITES MINIMALES
½ page
ANEP 2631005545
AVIS D’ATTRIBUTION PROVISOIRE
¼ page
ANEP 2631005580
إعلان عن منح مؤقت
¼ page
ANEP 2631005584
إعلان عن منح مؤقت
¼ page
ANEP 2631005620
إعلان عن طلب عروض مفتوح مع اشتراط قدرات دنيا
¼ page
ANEP 2631005636
ثاني إعلان عن طلب العروض الوطني المفتوح مع اشتراط قدرات دنيا
¼ page
ANEP 2631100262
AVIS D’ATTRIBUTION PROVISOIRE
¼ page
ANEP 2616005906
إعلان عن طلب عروض وطني مفتوح مع إشتراط قدرات دنيا
½ page
ANEP 2616010510
Avis d’Attribution Provisoire de Marché
½ page
ANEP 2616010518
AVIS D’ATTRIBUTION PROVISOIRE D’UN MARCHE
½ page
ANEP 2616010547
إعلان عن طلب عروض وطني مفتوح مع اشتراط قدرات دنيا
¼ page
ANEP 2616010593
AVIS D’ATTRIBUTION PROVISOIRE
¼ page
ANEP 2616010659
إعلان عن المنح المؤقت
¼ page
ANEP 2616010676
إعلان عن مسابقة وطنية محدودة في الهندسة المعمارية
½ page
ANEP 2616010702
إعلان عن مناقصة وطنية مفتوحة
½ page
2026-03-29
ANEP 2623002270
APPEL D’OFFRES OUVERT AVEC EXIGENCE DE CAPACITES MINIMALES
½ page
ANEP 2623002295
Avis D’attribution Provisoire Du Projet
¼ page
ANEP 2625003047
AVIS D’ATTRIBUTION PROVISOIRE
¼ page
ANEP 2625003090
AVIS D’APPEL D’OFFRES NATIONALE OUVERT AVEC EXIGENCE DE CAPACITÉS MINIMALES
¼ page
ANEP 2625003094
AVIS D’APPEL D’OFFRES OUVERT AVEC EXIGENCE DE CAPACITES MINIMALES N° 03 /2026
¼ page
ANEP 2630001936
إعلان عن طلب عروض مفتوح مع اشتراط قدرات دنيا
½ page
ANEP 2631005398
إعذار رقم 01
¼ page
ANEP 2631005486
AVIS D’APPEL D’OFFRES NATIONAL OUVERT AVEC EXIGENCE DE CAPACITES MINIMALES N° 09/2026
¼ page
ANEP 2631005496
AVIS D’APPEL D’OFFRES NATIONAL OUVERT AVEC EXIGENCE DE CAPACITES MINIMALES
½ page
ANEP 2631005508
2ème AVIS D’APPEL D’OFFRE NATIONAL OUVERT AVEC EXIGENCE DE CAPACITES MINIMALES
¼ page
ANEP 2631005537
MISE EN DEMEURE N° 02 AVANT RESILIATION
¼ page
ANEP 2616010018
AVIS D’INFRUCTUOSITÉ
¼ page
ANEP 2616010037
إعلان عن طلب عروض مفتوح مع اشتراط قدرات دنيا
½ page
ANEP 2616010051
إعذار
¼ page
ANEP 2616010066
إعلان عن طلب عروض وطني مفتوح مع اشتراط قدرات دنيا
½ page
ANEP 2616010113
إعلان عن طلب عروض وطني مفتوح مع اشتراط قدرات دنيا
½ page
ANEP 2616010123
AVIS D’ATTRIBUTION PROVISOIRE DES MARCHES
¼ page
ANEP 2616010130
AVIS D’attribution Provisoire du marché
¼ page
ANEP 2616010144
إعلان عن منح مؤقت لصفقة
¼ page
ANEP 2616010247
APPEL D’OFFRES OUVERT AVEC EXIGENCE DE CAPACITÉS MINIMALES
¼ page
ANEP 2616010311
AVIS D’APPEL D’OFFRES NATIONAL OUVERT AVEC EXIGENCE DE CAPACITE MINIMAL
¼ page
ANEP 2616010335
Avis d’attribution provisoire
¼ page
2026-03-28
ANEP 2623002235
إعلان عن منح مؤقت
¼ page
ANEP 2623002247
AVIS D’UN CONCOURS NATIONAL RESTREINT
½ page
ANEP 2625003005
إعلان عن المنح المؤقت
¼ page
ANEP 2625003021
إعلان ثاني لطلب العروض المفتوح
½ page
ANEP 2625003037
إعلان تصحيحي المنح المؤقت للصفقة
¼ page
ANEP 2630001850
طلب عروض مفتوح مع اشتراط قدرات دنيا
¼ page
ANEP 2630001851
إعلان طلب عروض وطني مفتوح مع اشتراط قدرات دنيا
¼ page
ANEP 2631005391
إعلان عن المنح المؤقت لصفقة
¼ page
ANEP 2631005420
إعلان عن طلب عروض مفتوح مع اشتراط قدرات دنيا
½ page
ANEP 2631005423
1er AVIS D’ADJUDICATION
½ page
ANEP 2631005448
إعلان عن المنح المؤقت للصفقة
¼ page
ANEP 2616009688
AVIS d’ATTRIBUTION PROVISOIRE DU MARCHE
¼ page
ANEP 2616009701
إعلان عن المنح المؤقت للصفقة
¼ page
ANEP 2616009775
Avis D’appel D’offres National Ouvert avec exigence de capacités minimales
¼ page
ANEP 2616010193
إعلان عن طلب عروض وطني مفتوح مع إشتراط قدرات دنيا
¼ page
ANEP 2616010260
MISE EN DEMEURE N°01
¼ page
ANEP 2616010261
إعلان عن طلب عروض وطني مفتوح مع اشتراط قدرات دنيا رقم 2026/01
¼ page
ANEP 2616010282
إعلان عن منح مؤقت
¼ page
ANEP 2616010292
إعلان عن منح مؤقت
¼ page
ANEP 2616010398
إعلان عن طلب عروض مفتوح مع اشتراط قدرات دنيا
½ page
ANEP 2616010400
AVIS D’APPEL D’OFFRES OUVERT AVEC EXIGENCE DE CAPACITES MINIMALES
½ page
ANEP 2616010401
إعلان عن منح مؤقت للصفقة
¼ page
